Expertly crafted ADU designs, tailored just for you
Unlock your property's full potential with a custom ADU designed by ADU Geeks. Our expert team ensures your vision comes to life while meeting all local regulations, creating a future-proof addition that enhances both function and value. With a dedicated project coordinator guiding you every step of the way, we'll design an efficient, future-proof space that looks stunning and feels like home.

Learn from the experts








What is an MDU?
About this course:
Taught by industry professionals with years of ADU experience
Online, self-paced learning you can access anytime
Certificate of Completion upon finishing 100% of the course
Downloadable resources & tools to apply directly to your ADU project
Step-by-step guidance through feasibility, design, financing, construction, and management
Designed for homeowners, investors, and developers ready to maximize property value
Let us handle the permits for you
With over 500 successful projects under our belt, we simplify the ADU permit process so you can focus on what matters most—bringing your vision to life.

Thorough Research
We pinpoint the exact surveys and documentation needed for your location to ensure that no detail is overlooked.
Agency Communication
We handle all interactions with relevant agencies and governing bodies on your behalf.
Detailed Plans
We create comprehensive plans that can be easily submitted where needed.
Response Management
We address complex reviews from the local planning department to minimize delays.avif)
Document Preparation
We prepare all the necessary paperwork for review.
Fee Coordination
We manage and coordinate fee payments.
Your ADU concierge
With over 500 successful projects under our belt, we simplify the ADU permit process so you can focus on what matters most—bringing your vision to life.

Peace of mind
We only recommend contractors who have a proven track record of quality, reliability, and excellence in ADU development.
Ongoing support
Whether you have questions, concerns, or changes, our team is happy to be on standby if anything comes up.
Minimized risk
We’re confident in the builders we recommend. Rest assured knowing that they carry the necessary credentials, insurance, and warranties.
What is an MDU?
A Multi-Dwelling Unit (MDU) is housing where multiple units are contained within a single structure. These can also be called multiple-unit dwellings or multifamily developments.
Partnering with ADU Geeks to build an MDU means enhancing your real estate portfolio, elevating your neighborhood, and unlocking valuable investment opportunities. Examples of MDUs we've planned and designed include:
- Apartment complexes
- Condominiums
- Duplexes, triplexes, and fourplexes
- Townhomes

Your Trusted MDU Guide

Our team comprises seasoned investors and developers who have faced the challenges of property development and emerged successfully. We’ve learned from our experiences and use that knowledge to guide you through your project.
With our expertise, you’ll navigate the journey with confidence. Ready to get started?
What's included in this package?
With over 500 successful projects under our belt, we simplify the ADU permit process so you can focus on what matters most—bringing your vision to life.

Site Evaluation
Initial site visit and review of existing utility conditions.
Land Assessment
811 Dig Alert submittal for underground gas and electric services if needed.
Utility Planning
Recommendation for panel or gas meter placement to meet utility standards.
Application Management
Preparation and submittal of SDG&E new service application..avif)
Design Review
Utility design review for conformance and accuracy.
Timeline Tracking
Estimated utility timelines and construction dates coordination.
Pre-Construction Coordination
Trenching and inspection scheduling with the construction team.
Final Connection
Service connection completion and power is energized.
How much does it cost to build an ADU?
Each ADU project is unique, which means the pricing is too. Depending on factors such as:



%20(1).avif)
Discovering the potential

Building an ADU can be life-changing; make sure you start the process with an accurate understanding of what to expect.
Our feasibility study provides options for your property, setting expectations and creating a smooth transition into the design phase. We gather all of the necessary information before anything is set in stone, avoiding last-minute calls of “Can I even place an ADU there?” or “Wait- is this even in budget?”
Unlock the full potential of your property
Purchase your ADU feasibility study today and get expert insight into what's possible on your lot.
Zoning & Setback Analysis
Site Access & Conditions
Preliminary Cost Estimates
Floor Plan Options
Timeline & Permitting Projection
PDF Report




Frequently asked questions
A feasibility study is the only way to bring all the key questions and potential challenges to light before moving forward.Think of the feasibility study as Phase 1 of your ADU journey. It’s where we uncover zoning restrictions, site limitations, cost considerations, and any surprises that could impact your project. Instead of running into roadblocks later, you get clear answers upfront, all in one comprehensive, easy-to-understand document.It’s not just a smart step, it’s an essential one. The feasibility study gives you the clarity and confidence you need to move forward with your ADU the right way.
While all residential properties in California are entitled to build at least one Accessory Dwelling Unit (ADU) of up to 800 square feet, there are rare cases, such as those involving environmentally sensitive lands, where certain limitations may apply due to safety or regulatory concerns.
That said, there’s no need to worry. Once you purchase a feasibility study through our website, you’ll submit your property details and proposed ADU scope. Within 24 hours, one of our experts will reach out to schedule a one-on-one consultation. During that call, we’ll review your information and provide an initial assessment of your project’s viability.
In the unlikely event that your concept isn’t feasible, we’ll either issue a full refund or work with you to explore alternative ADU options that better suit your property. If it is viable, we’ll move forward with in-depth research and deliver a comprehensive feasibility study—complete with a personalized walkthrough from our team.
Why a Prefab ADU?

Faster Construction
The estimated timeline to build a Pre-Fab ADU is ~3-4 weeks after permitting compared to an estimated timeline of 2-3 months for a traditional single-story ADU
Cost-Effective
Prefab ADUs cost roughly 25-36% less per sqft than stick builds for material and labor costs
Sustainable
Factory production optimizes materials, reducing excess waste
HUD-Certified
Our Prefabs are federally certified by HUD so you can bypass state energy requirements for faster approvals..avif)
Less On-Site Disruption
Most of the work happens off-site, which means less noise, mess, and inconvenience at your property.
Quality Control
Using repeatable processes and skilled teams, we deliver consistent craftsmanship and quality
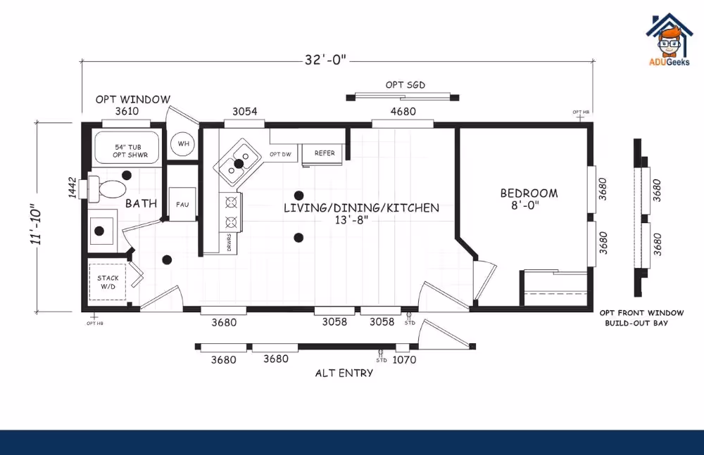
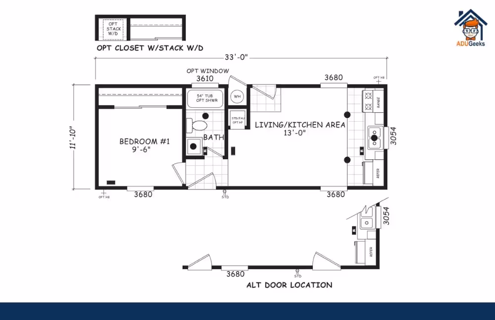
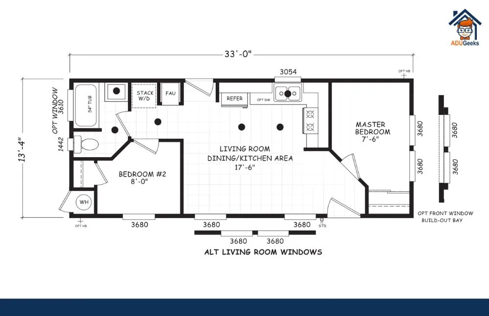
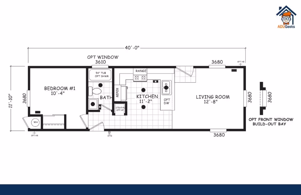
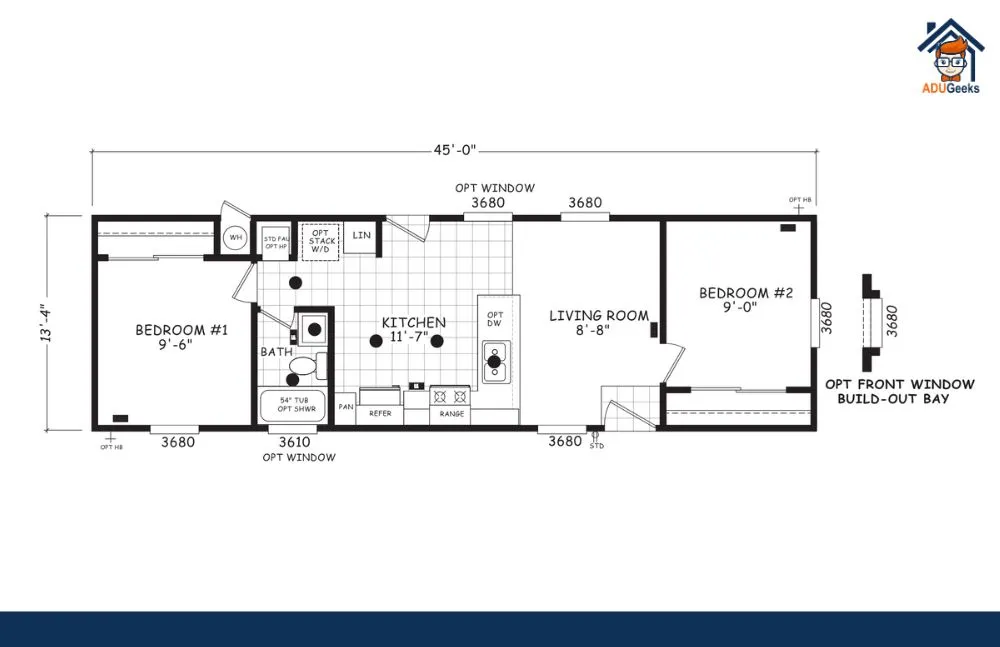
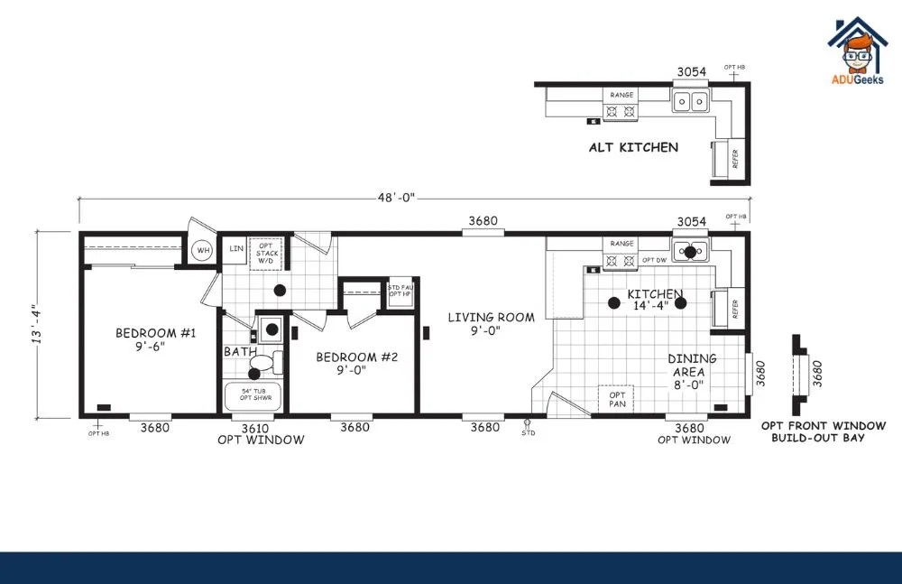
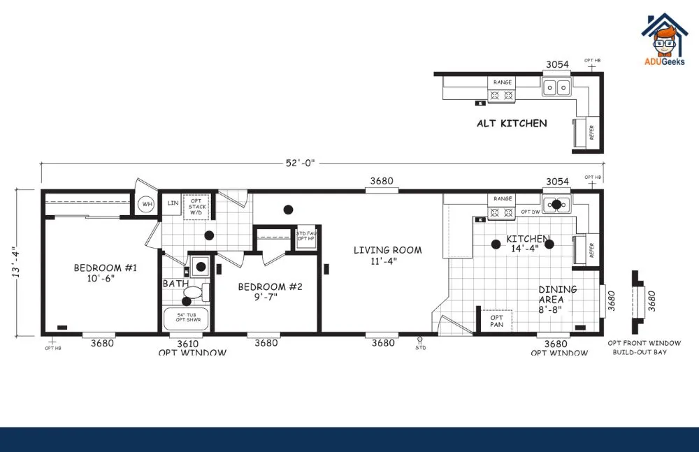
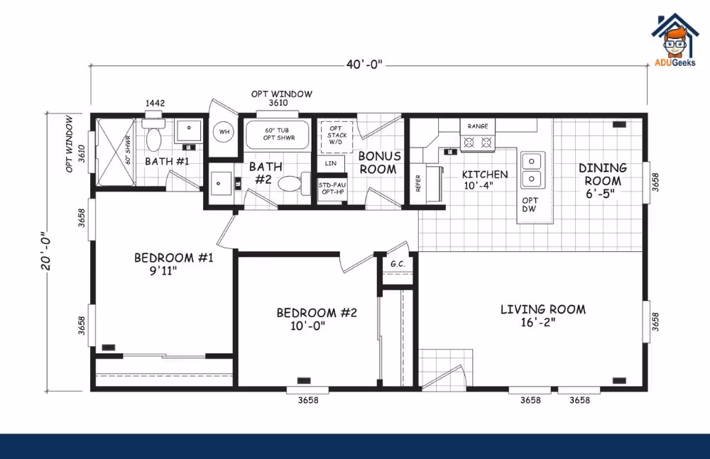
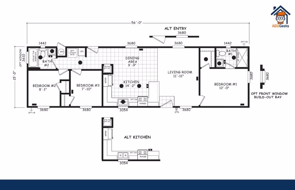
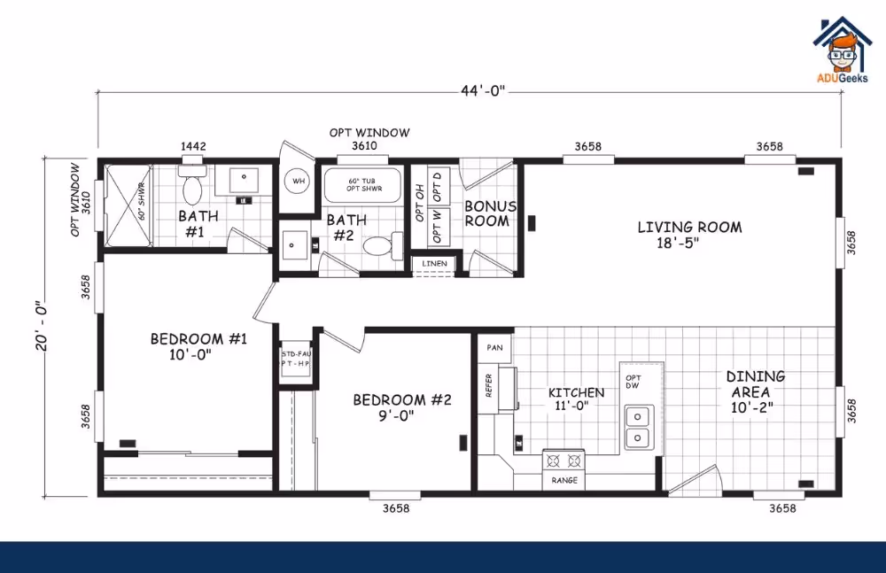
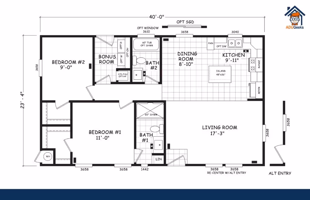
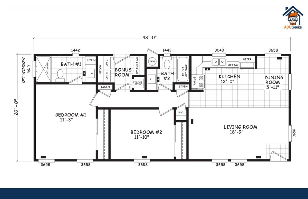
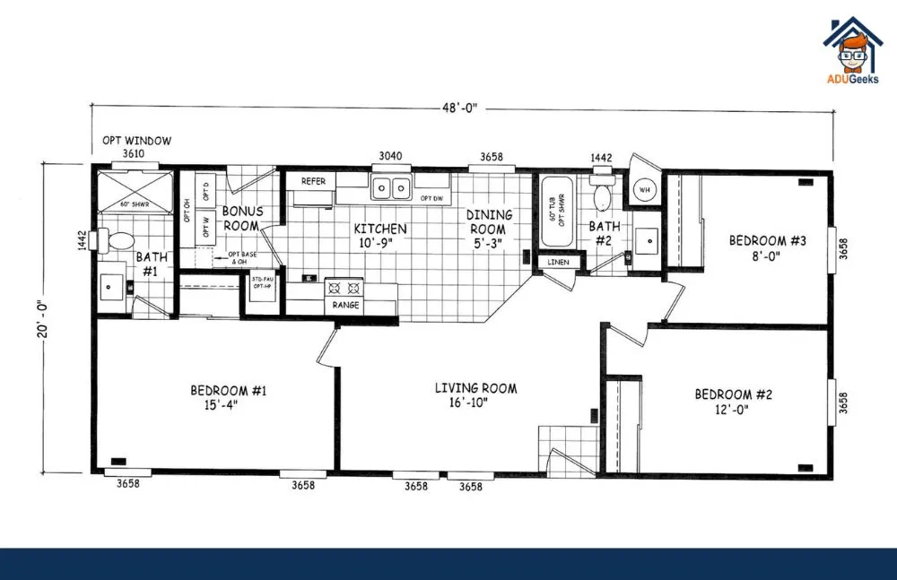
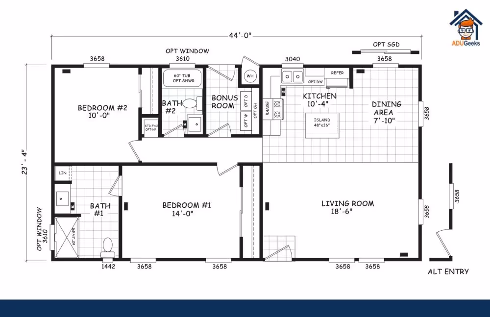
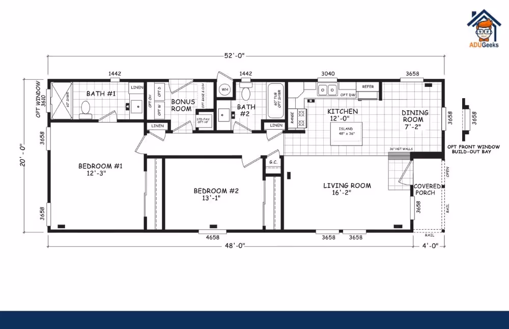
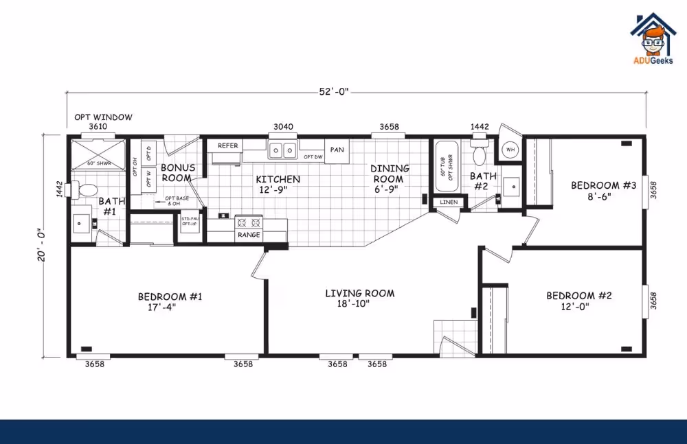
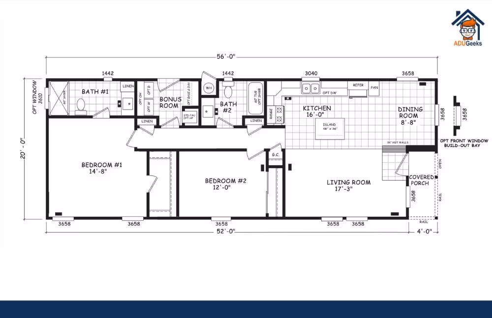
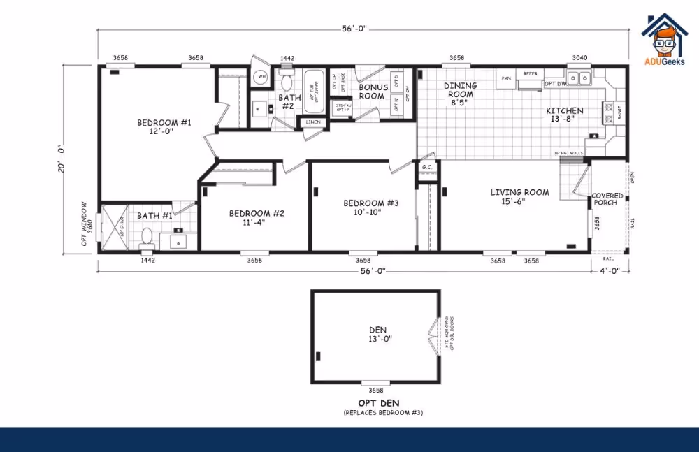
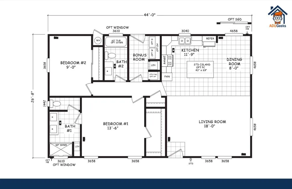
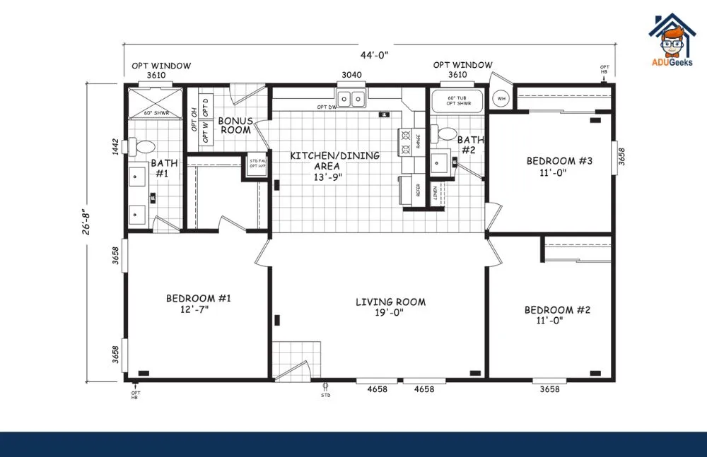
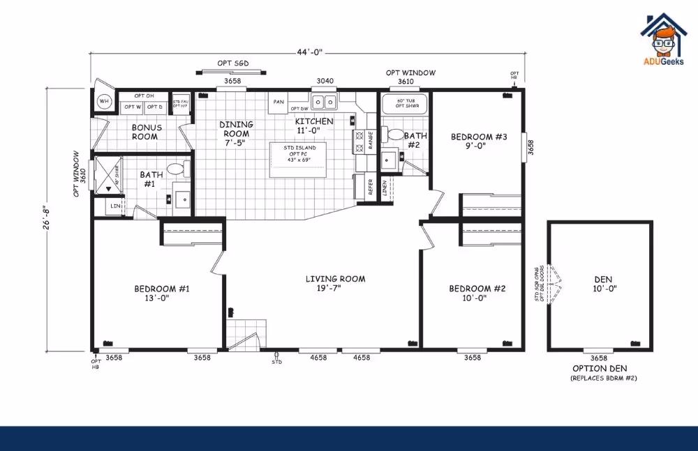
Prefab floor plans
Every great space begins with a smart layout. Find the one that fits your life and set the foundation for what’s next.
Meet our Haven Series: Smart, stylish, and under 500 sq ft. Perfect for tight budgets and properties with limited space. Ideal as a guest suite, home office, or minimalist retreat.
* Floor plans that are under 500 sq ft avoid the school fees.
Meet our Nest Series: With 500-799 sq ft, the Nest Series offers the perfect balance of comfort and flexibility for small families, rental income, or multigenerational living.
Meet our Vista Series: Designed for those who love to live spaciously, the 800-999 sq ft Vista Series brings open-concept living, room to entertain, and space to grow.
Make it yours: Customize every detail to reflect your style
With your layout in place, it’s time to make it uniquely yours. From finishes to fixtures, Adu Geeks helps you create a space that’s unmistakably you.
FAQs
.jpg)
ADUs come in a variety of designs and builds for different properties and goals. At ADU Geeks, we specialize in:
- Detached ADUs
- Attached ADUs
- Conversion ADUs
- Above-Existing Structure ADUs
- Junior Accessory Dwelling Units
- Pre-fab ADUs
- Duplex ADUs
- Multi-Family ADUs (City of San Diego specific)
We offer a unique Cost Estimator Tool to give potential clients a rough estimate of ADU costs. After we conduct a feasibility study of your property, you’ll receive specific breakdowns for ADU investments based on your location, terrain, and other factors.
We’d love to hear them! Your designer and project coordinator are experts in customizing your ADU to meet your specific needs.
At least one residential unit is required for a property to qualify for an ADU. Other requirements vary by location and can often be complex. At ADU Geeks, we dive deep into ADU regulations, ensuring your home meets all local codes and regulations, as well as your expectations.
ADU floor plans designed by experts
Our floor plans are fully customizable to fit your style, space requirements, and goals. Explore some of our favorite ADU floor plans or create one from scratch with your design team.

Custom ADU designs that fit your needs and budget
Our expertise spans a diverse range of ADU designs, each tailored to meet your unique vision and practical needs.
Detached ADUs
Standalone units that offer flexibility in design and placement, providing independent living spaces that complement your existing home structure.
%20(1).jpg)
Attached ADUs
Extending your primary residence, perfect for maintaining a unified property layout or when working with limited space.
.jpg)
Conversion ADUs
Transform existing structures like garages into fully functional living spaces, such as a living room or bedroom.
%20(1).jpg)
Above-Existing Structure (AES) ADUs
Maximize your property's space by adding a unit above garages or other structures, ideal for urban areas where ground space is limited.
%20(1)%20(1).jpg)
Junior Accessory Dwelling Units (JADU)
Smaller in scale but mighty in utility, JADUs transform existing spaces into efficient living quarters with a minimal footprint.
.jpg)
Pre-fab ADU
Prefabricated ADUs offer the advantages of an ADU with a faster turnaround time than custom builds.
.jpg)
Bringing your vision to life
After the initial feasibility study for your new ADU is complete, you’ll move forward with our dedicated team who will bring your vision to life. From initial floorplan drawings to final finishes, our expert project coordinator will guide you through every step of the design process.
%20(1).avif)
Simplify the ADU design process
%20(1).avif)
Your property is unique; make sure your ADU is, too. Working with our team allows you to relax, knowing the final design will meet your vision, site-specific requirements, and local regulations.
Questions our Feasibility Study can answer
.jpg)
ADUs come in a variety of designs and builds for different properties and goals. At ADU Geeks, we specialize in:
- Detached ADUs
- Attached ADUs
- Conversion ADUs
- Above-Existing Structure ADUs
- Junior Accessory Dwelling Units
- Pre-fab ADUs
- Duplex ADUs
- Multi-Family ADUs (City of San Diego specific)
We offer a unique Cost Estimator Tool to give potential clients a rough estimate of ADU costs. After we conduct a feasibility study of your property, you’ll receive specific breakdowns for ADU investments based on your location, terrain, and other factors.
We’d love to hear them! Your designer and project coordinator are experts in customizing your ADU to meet your specific needs.
At least one residential unit is required for a property to qualify for an ADU. Other requirements vary by location and can often be complex. At ADU Geeks, we dive deep into ADU regulations, ensuring your home meets all local codes and regulations, as well as your expectations.
Have the MDU Experts on Your Side
MDU projects can be complex, but with ADU Geeks, you have a team of experts to navigate these challenges alongside you.
We handle the complexities of code updates and efficient floorplans, ensuring your project not only meets but exceeds expectations. Our innovative designs create more than just buildings; they lay the foundation for thriving communities, maximizing your property’s potential and transforming your vision into reality.

Our Multi Dwelling Units in Action
Our projects showcase what’s possible. We've helped numerous clients transform properties, creating housing that uplifts neighborhoods. Now, it's your turn.
.webp)
Ready to begin your journey?
Take the first step toward transforming your property and your life. Schedule a consultation with one of our experts and start your ADU journey today.






































