
A smartly executed garage conversion built for speed
Tom Sears is the Vice President of Architecture at ADU Geeks and a licensed architect with experience across multifamily, single-family, and hospitality projects. He has worked on developments ranging from 1,000 to 1,000,000 square feet, with construction budgets from $120 to $1,200 per square foot. With a strong foundation in both design and real estate, Tom brings a strategic, housing-first approach to ADU planning and execution across California.
ADU Features
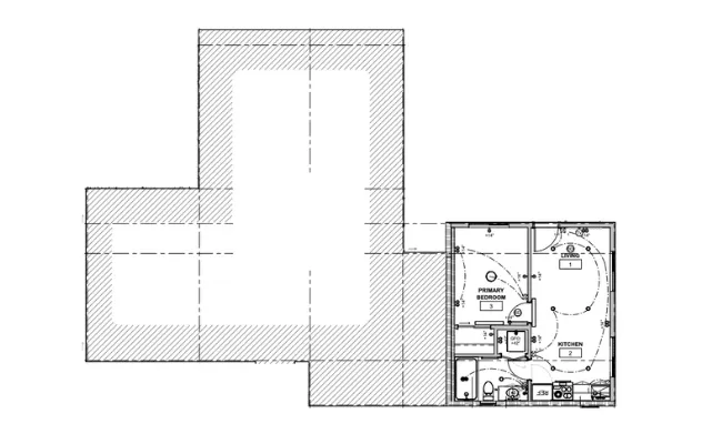
Located in Central San Diego, this project converted an existing garage into a 480 sq. ft. accessory dwelling unit (ADU) designed for both function and comfort. Though compact in size, the layout and amenities reflect thoughtful planning that balances livability with efficiency.
Key features include:
- 480 square foot garage conversion ADU
- 1 bedroom with a 5' closet (rod and shelf included)
- Open-plan living space (9'-10" x 21'-8") with kitchen, dining, and media access
- In-unit washer/dryer
- Mini-split HVAC system for energy-efficient climate control
This San Diego garage ADU was designed with versatility in mind, allowing the owner to use the space flexibly for long-term housing or short-term rental opportunities.
Design Challenges
At first glance, this garage conversion project seemed straightforward: a modest footprint, clear layout, and modern amenities. However, the real challenge came from the client’s urgent need for speed.
With a target to permit and build as quickly as possible, the team had to navigate the classic construction dilemma: how to balance speed, cost, and quality—without compromising any of them.
The pressure to deliver quickly transformed what might have been a routine ADU conversion into a test of strategic project management, coordination, and adaptability.
Design Solution
To meet the client’s aggressive timeline, the team focused on a tight, highly efficient floor plan and proactive engagement with consultants and permitting agencies.
The ADU included:
- A combined living/kitchen/media area measuring 9'-10" x 21'-8"
- A 12'-3" x9'-2" bedroom with a functional closet
- Integrated amenities such as in-unit laundry and mini-split HVAC
While mechanical, electrical, and landscape plans weren’t required by the city for this scope of work, the team engaged those consultants anyway to help streamline the plan check process and accelerate approvals.
Equally important, the client remained flexible—prioritizing speed and deferring or simplifying non-essential features so as not to stall progress.
This approach turned a potentially bureaucratic permitting process into a well-coordinated sprint, without cutting corners on design or functionality.
Impact/Effect
The outcome of this garage ADU project demonstrates what’s possible when project strategy aligns with client goals and permitting realities:
- Permit issued just 5.5 months after contract execution
- Timeline exceeded expectations for ADU conversions in San Diego
- Project was completed quickly enough that the client paused construction to use the space as a rental during summer peak
- The compact design delivered all core functions in under 500 square feet, proving that small spaces can be both livable and profitable
- The project showcases the power of proactive planning, fast-tracked approvals, and adaptive project delivery
This ADU stands as a successful example of how speed and quality can coexist—a lesson valuable to any homeowner or developer navigating the San Diego ADU process under time-sensitive conditions.
.avif)
.webp)
.webp)
Ready to begin your journey?
Take the first step toward transforming your property and your life. Schedule a consultation with one of our experts and start your ADU journey today.

.webp)